Skip To Content

3009 67th St W

Lehigh Acres, FL 33971
  • $22,999
  • STATUS: Active
  • ON SITE: 207 Days
  • MLS #: 225067199
UPDATED: 54 min ago
$22,999
  • 0
    BEDS
  • 0.25
    ACRES
  • 0
    BATHS
  • 0
    1/2 BATHS
Neighborhood:
Type:
Vacant Land / Lots
County:
Lee

School Ratings & Info

Description

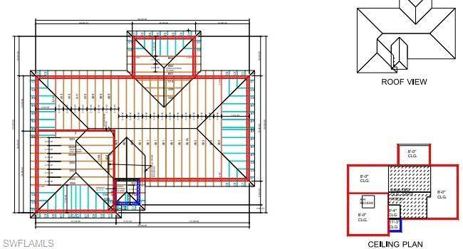
Incredible opportunity to own a quarter-acre lot in Lehigh Acres, the fastest-growing city in Florida and still ranked as the #1 real estate market in America. This property is fully prepped and ready to build, being sold with a complete package of building essentials including a feasibility study, engineered drawings, blueprints, floor plan, survey, DEP report, roof truss layout drawings, and trusses sealed and stamped by an engineer. A deposit of $1,229.56 has already been paid toward the truss package (total cost $6,147.83, with balance due at delivery), saving you both time and upfront costs. With utilities nearby and new construction thriving throughout the community, this lot is a rare turnkey opportunity for builders, investors, or anyone ready to create their dream home. Conveniently located with easy access to Fort Myers, shopping, schools, and major highways, this property combines location, growth, and value in one of the hottest markets in the country. SEE SUPPLEMENTS.

Monthly Payment Calculator



The data relating to real estate for sale on this limited electronic display come in part from the Broker Reciprocity Program (BR Program) of M.L.S. of Naples, Inc. Properties listed with brokerage firms other than RE/MAX Realty Group are marked with the BR Program Icon or the BR House Icon and detailed information about them includes the name of the Listing Brokers. The properties displayed may not be all the properties available through the BR Program. The accuracy of this information is not warranted or guaranteed. This information should be independently verified if any person intends to engage in a transaction in reliance upon it. Data last updated 2026-03-11T23:26:21.293. Some properties that appear for sale on this website may no longer be available. For the most current information, contact RE/MAX Realty Group, 239-785-0408, . Licensed in the State of Florida.
www.clickfortmyers.com/homes/166977713
Print Image

3009 67th St W Lehigh Acres, FL 33971

  • Price: $22,999
  • Status: Active
  • On Site: 207 Days
  • Updated: 54 min ago
  • MLS #: 225067199
0
Beds
0
Baths
0
½ Baths
0.25
Acres
Neighborhood:
Lehigh Acres
County:
Lee
Area:
LA03 - Northwest Lehigh Acres
Property Description
Incredible opportunity to own a quarter-acre lot in Lehigh Acres, the fastest-growing city in Florida and still ranked as the #1 real estate market in America. This property is fully prepped and ready to build, being sold with a complete package of building essentials including a feasibility study, engineered drawings, blueprints, floor plan, survey, DEP report, roof truss layout drawings, and trusses sealed and stamped by an engineer. A deposit of $1,229.56 has already been paid toward the truss package (total cost $6,147.83, with balance due at delivery), saving you both time and upfront costs. With utilities nearby and new construction thriving throughout the community, this lot is a rare turnkey opportunity for builders, investors, or anyone ready to create their dream home. Conveniently located with easy access to Fort Myers, shopping, schools, and major highways, this property combines location, growth, and value in one of the hottest markets in the country. SEE SUPPLEMENTS.
Exterior Features

Attached Garage No Canal Width None Carport Desc No Covered Spaces 0 Garage No Gulf Access YN No Irrigation None Lot Back 80 Lot Desc Oversize Lot Frontage 80 Lot Left 137 Lot Right 137 Rear Exposure S Road Paved View Landscaped Area View YN Yes Waterfront Desc None Waterfront YN No

Interior Features

Fireplace No

Property Features

Condo Fee 0 Current Use 01-Single Family Electric On Property YN Yes Foreclosed Reo YN No Hoa Desc No Hoa Fee 0 Horse YN No Lot Type Residential Lot Lot Unit 7 Mandatory Club Fee 0 Master Hoa Fee 0 MLS Naples New Construction YN No Possible Use Single FamilyResidential Potential Short Sale YN No Senior Community No Sewer Septic Tank Structure Type House Subdivision Name LEHIGH ACRES Terms Buyer Pays TitleCASH ONLYSeller Pays Title Utilities Electricity Connected Water Source Well Zoning RS-1

Listing courtesy of A-Ward Winning Realty LLC: 518-410-4097.
The source of this real property information is the copyrighted and proprietary database compilation of the M.L.S. of Naples, Inc. Copyright 2026 M.L.S. of Naples, Inc. All rights reserved. The accuracy of this information is not warranted or guaranteed. This information should be independently verified if any person intends to engage in a transaction in reliance upon it


The data relating to real estate for sale on this limited electronic display come in part from the Broker Reciprocity Program (BR Program) of M.L.S. of Naples, Inc. Properties listed with brokerage firms other than RE/MAX Realty Group are marked with the BR Program Icon or the BR House Icon and detailed information about them includes the name of the Listing Brokers. The properties displayed may not be all the properties available through the BR Program. The accuracy of this information is not warranted or guaranteed. This information should be independently verified if any person intends to engage in a transaction in reliance upon it. Data last updated 2026-03-11T23:26:21.293. Some properties that appear for sale on this website may no longer be available. For the most current information, contact RE/MAX Realty Group, 239-785-0408, . Licensed in the State of Florida.
 
https://bt-photos.global.ssl.fastly.net/naples/orig_boomver_1_225067199-2.jpg https://bt-photos.global.ssl.fastly.net/naples/orig_boomver_1_225067199-2.jpg https://bt-photos.global.ssl.fastly.net/naples/orig_boomver_1_225067199-2.jpg
Logo
RE/MAX Realty Group
7910 Summerlin Lakes Dr.
Fort Myers FL, 33907