Skip To Content

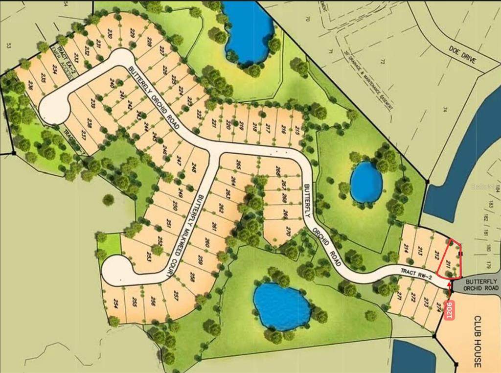
1206 Butterfly Orchid Road

Davenport, FL 33837
  • $150,000
  • STATUS: Active
  • ON SITE: 215 Days
  • MLS #: S5132019
UPDATED: 64 min ago
$150,000
  • 0
    BEDS
  • 0.2
    ACRES
  • 0
    BATHS
  • 0
    1/2 BATHS
Neighborhood:
Type:
Vacant Land / Lots
County:
Area:

School Information

Elementary School:
High School:

Description

BIG DEAL ALERT 27 LOTS, DISNEY CORRIDOR "This is the kind of opportunity that builds empires. Believe me." Watersong Resort is releasing an exclusive bulk package of 27 prime lots and it's the type of deal serious investors fight for. Perfectly positioned minutes from Disney and Orlando's world-famous theme parks, this package gives you control of the hottest short-term rental product on the market. 22 lots (50x120 ft.) 12-Bedroom Vacation Homes 5 lots (70x120 ft.) 15-Bedroom Estates Six-Month Build Rule: Start first 10 within 6 months, then build in batches of 10 Here's the winning formula: Park Square Homes builds them all with the two most profitable floor plans of the past 3 years. These designs rent at top rates, stay booked, and deliver serious cash flow. Smart investors know: timing is everything. Bulk inventory like this, in a gated resort with global demand, doesn't hit the market twice. Secure it now before someone else does.

Monthly Payment Calculator




© 2026 My Florida Regional MLS DBA Stellar MLS. All rights reserved. All listings displayed pursuant to IDX. All listing information is deemed reliable but not guaranteed and should be independently verified through personal inspection by appropriate professionals. Listings displayed on this website may be subject to prior sale or removal from sale; availability of any listing should always be independently verified. Listing information is provided for consumers personal, non-commercial use, solely to identify potential properties for potential purchase; all other use is strictly prohibited and may violate relevant federal and state law. Data last updated 2026-03-06T11:47:55.283.
www.clickfortmyers.com/homes/166538364
Print Image

1206 Butterfly Orchid Road Davenport, FL 33837

  • Price: $150,000
  • Status: Active
  • On Site: 215 Days
  • Updated: 64 min ago
  • MLS #: S5132019
0
Beds
0
Baths
0
½ Baths
0.2
Acres
Neighborhood:
Davenport
County:
Polk
Area:
Davenport
Elementary School:
Loughman Oaks Elem
Middle School:
Davenport School Of The Arts
High School:
Davenport High School
Property Description
BIG DEAL ALERT 27 LOTS, DISNEY CORRIDOR "This is the kind of opportunity that builds empires. Believe me." Watersong Resort is releasing an exclusive bulk package of 27 prime lots and it's the type of deal serious investors fight for. Perfectly positioned minutes from Disney and Orlando's world-famous theme parks, this package gives you control of the hottest short-term rental product on the market. 22 lots (50x120 ft.) 12-Bedroom Vacation Homes 5 lots (70x120 ft.) 15-Bedroom Estates Six-Month Build Rule: Start first 10 within 6 months, then build in batches of 10 Here's the winning formula: Park Square Homes builds them all with the two most profitable floor plans of the past 3 years. These designs rent at top rates, stay booked, and deliver serious cash flow. Smart investors know: timing is everything. Bulk inventory like this, in a gated resort with global demand, doesn't hit the market twice. Secure it now before someone else does.
Exterior Features

Lot Size Dimensions 41 x 122 x 139 x 30 x 39 x 17 Road Surface Type Asphalt Water Access Yn No Water Extras Yn No Water View Yn No Waterfront Feet Total 0 Waterfront Yn No

Interior Features

Sewer Public Sewer Water Source Public

Property Features

Association Yn No Current Use Residential Flood Zone Code X For Lease Yn No Ownership Fee Simple Special Listing Conditions None Tax Annual Amount 1303.02 Total Annual Fees 0 Total Monthly Fees 0 Utilities Public


Listing information © 2026 My Florida Regional MLS DBA Stellar MLS..
Listing provided courtesy of EMPIRE NETWORK REALTY: 407-440-3798.



© 2026 My Florida Regional MLS DBA Stellar MLS. All rights reserved. All listings displayed pursuant to IDX. All listing information is deemed reliable but not guaranteed and should be independently verified through personal inspection by appropriate professionals. Listings displayed on this website may be subject to prior sale or removal from sale; availability of any listing should always be independently verified. Listing information is provided for consumers personal, non-commercial use, solely to identify potential properties for potential purchase; all other use is strictly prohibited and may violate relevant federal and state law. Data last updated 2026-03-06T11:47:55.283.
 
https://bt-photos.global.ssl.fastly.net/mfr/orig_boomver_1_S5132019-2.jpg https://bt-photos.global.ssl.fastly.net/mfr/orig_boomver_1_S5132019-2.jpg
Logo
RE/MAX Realty Group
7910 Summerlin Lakes Dr.
Fort Myers FL, 33907